Chị Trang theo dõi các công trình thực tế của Nhà Xanh Việt Nam trên mạng xã hội suốt một thời gian dài. Nhận thấy sự đồng điệu tuyệt đối trong thẩm mỹ kiến trúc, chị quyết định chọn chúng tôi làm đơn vị thiết kế và thi công trọn gói cho tổ ấm của mình. Dưới đây là chi tiết về mẫu nhà phố 2 tầng 5x17m của chị trang sau khi đã thống nhất cùng Nhà Xanh Việt Nam:
Thông tin chung về công trình
- Chủ đầu tư: Chị Trang.
- Địa chỉ: Phường Long Bình, tỉnh Đồng Nai.
- Quy mô: Nhà 1 trệt 1 lầu.
- Thời gian thi công: 4 tháng.
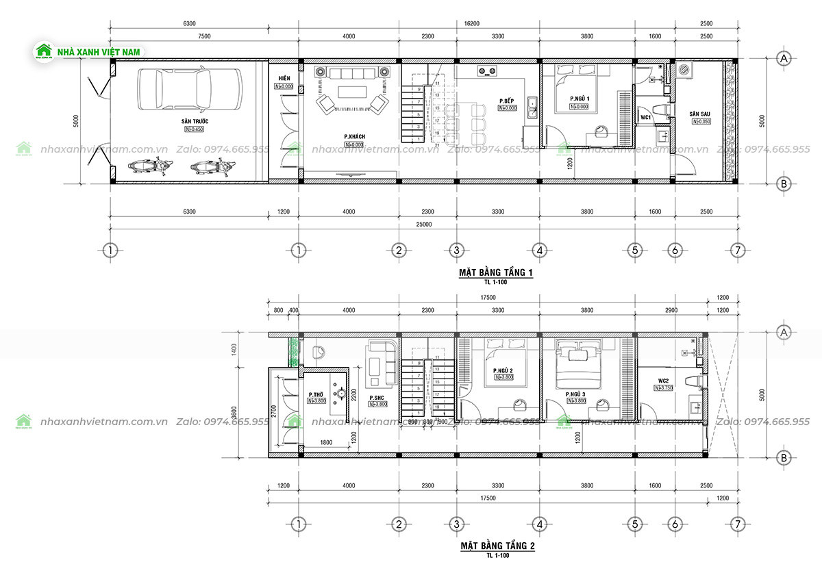
- Diện tích nhà: 5mx25m . Diện tích xây dựng: 5x17m.
- Công năng: 1 phòng khách, 1 phòng bếp, 3 phòng ngủ, 2 wc , phòng thờ, phòng sinh hoạt chung.
- Mã công trình: NP2T-NX-15
3D và công năng mẫu nhà phố 2 tầng
3D ngoại thất mặt tiền
Nhà phố 2 tầng 5x17m hiện đại mang ngôn ngữ kiến trúc tối giản, tập trung vào các hình khối dứt khoát trên diện tích 85m2. Mặt tiền kết hợp mảng tường phẳng và đường vòm cong dật cấp tạo chiều sâu. Tone trắng sứ chủ đạo làm nền cho các chi tiết xám ghi và nâu ấm.




Tầng một lùi sâu, tận dụng lợi thế chiều dài 17m để tạo khoảng sân trước đỗ xe rộng rãi. Hệ mái che sân dùng khung thép mạ kẽm kết hợp lợp tôn lạnh. Cổng chính của Nhà phố 2 tầng 5x17m hiện đại được ghép từ các thanh thép hộp sơn tĩnh điện. Tường rào kiên cố đục ô thoáng tròn tĩnh tại, bảng tên công trình gắn nổi bật trên trụ cổng ốp mảng xám.
Tầng hai tạo điểm nhìn bằng cấu trúc vòm cong khoét sâu làm ban công. Hệ cửa đi mở trượt sử dụng khung nhôm Xingfa và kính cường lực. Diện tường dưới ban công ốp gỗ Conwood ngoài trời. Khối tường bên trái sơn xám vươn cao, gắn mái vòm che nắng nghệ thuật và cụm đèn hắt tường hai chiều. Lan can dùng sắt hộp dọc nguyên bản, không trang trí rườm rà.
Phần mái của Nhà phố 2 tầng 5x17m hiện đại được đúc bê tông cốt thép phẳng. Mặt sàn mái mở giếng trời ốp kính lấy sáng cho trục đứng. Hệ thống bồn nước và thái dương năng đặt lùi về sau, đảm bảo thẩm mỹ mặt đứng. Công trình loại bỏ hoàn toàn phào chỉ đắp nổi, ưu tiên vật liệu công nghiệp và sự xuất hiện của các dải cây xanh tại ban công.
>>MẪU NHÀ TƯƠNG TỰ:
- ✅Mẫu nhà phố 2 tầng hiện đại 4x16m tại Biên Hòa NP2T-NX-14
- ✅Mẫu Nhà 1 trệt 1 lầu 8x18m hiện đại tại Đồng Nai NP2T-NX-13
- ✅Mẫu nhà phố hiện đại 1 trệt 1 lầu 5×18.5m NP2T-NX-12
Công năng 2 tầng của mẫu nhà
Bản vẽ công năng mẫu nhà phố 2 tầng 5x17m được tính toán kỹ lưỡng. Thiết kế đề cao sự tiện dụng và luân chuyển không khí tự nhiên trong nhà.
- Tầng 1: Sân trước rộng rãi để đỗ ô tô, phòng khách tiếp nối khu vực bếp ăn, 1 phòng ngủ tiện lợi, 1 phòng vệ sinh chung và khoảng sân sau lấy sáng.
- Tầng 2: Ban công phía trước, phòng thờ, phòng sinh hoạt chung, 2 phòng ngủ, 1 phòng vệ sinh chung và khu vực giặt phơi.

3D nội thất
Phòng khách nổi bật với vách ốp gỗ trầm ấm và sofa nỉ đơn giản. Cầu thang mở cùng lan can sắt nghệ thuật giúp không gian thêm phần thông thoáng.



Bếp chữ L gọn gàng sử dụng hệ tủ acrylic trắng kết hợp vân gỗ. Bàn ăn mặt đá bo cong và cụm đèn thả trần mang lại cảm giác thanh lịch, hiện đại.


Phòng ngủ đề cao sự tĩnh lặng với nội thất tối giản, đồng bộ. Tủ quần áo kịch trần nối liền bàn làm việc giúp tận dụng tối đa diện tích lưu trữ.







Phòng tắm ốp gạch terrazzo sạch sẽ, phân chia khu khô ướt bằng vách kính đứng. Gương LED bất đối xứng và mảng tường gạch thẻ pastel tạo nét phá cách nhẹ nhàng.



Khu giặt phơi tràn ngập ánh sáng tự nhiên nhờ hệ mái kính trong suốt. Tường ốp đá thô mộc kết hợp hàng trúc xanh mang lại cảm giác thư thái, gần gũi.


Tổ ấm trong mơ của bạn xứng đáng được kiến tạo bởi những người thợ tận tâm và chuyên nghiệp. Liên hệ ngay với dịch vụ xây nhà trọn gói tại Đồng Nai của Nhà Xanh Việt Nam để hiện thực hóa không gian sống lý tưởng!





