Nhờ sự giới thiệu từ một khách hàng cũ, anh Dương và chị Huyên nhận thấy sự đồng điệu trong phong cách làm việc nên đã tin chọn Nhà Xanh Việt Nam thiết kế và thi công trọn gói. Dưới đây là trọn bộ phối cảnh 3D mặt tiền, bản vẽ công năng và thiết kế nội thất chi tiết của công trình.
Thông tin công trình nhà phố 3 tầng
- Chủ đầu tư: Anh Hòa chị Tuyền.
- Địa chỉ: KDC Gold Hill, xã Trảng Bom, tỉnh Đồng Nai.
- Quy mô: Nhà 1 trệt 2 lầu, sân thượng.
- Thời gian thi công: 5 tháng.
- Diện tích đất: 5mx23m . Diện tích xây dựng: 5x19m.
- Công năng: 1 phòng khách, 1 phòng bếp, 3 phòng ngủ, 2 wc , phòng thờ, phòng sinh hoạt chung, sân thượng.
- Mã công trình: NP3T-NX-4
3D mặt tiền và công năng 3 tầng mẫu nhà phố
3D mặt tiền nhà 1 trệt 2 lầu 5x19m mái bằng Hiện Đại
Mặt tiền mẫu nhà phố 1 trệt 2 lầu 5x19m mang đậm ngôn ngữ kiến trúc hiện đại. Thiết kế sử dụng các mảng khối hình học phi đối xứng, các đường nét dứt khoát kết hợp cùng những mảng bo cong mềm mại. Tone màu trắng chủ đạo làm nổi bật toàn bộ hình khối công trình.
Khu vực cổng chính kiên cố và bề thế, hệ cửa cổng sử dụng thép hộp sơn tĩnh điện kết hợp các thanh gỗ nhựa ngoài trời Conwood màu nâu trầm. Mảng tường rào bên trái ốp gạch inax trang trí.




Tiến vào tầng trệt, không gian mở hoàn toàn. Hệ cửa mặt tiền sử dụng nhôm Xingfa nhập khẩu, kết hợp kính cường lực an toàn. Vật liệu kính giúp lấy sáng tối đa cho không gian nội thất. Bậc tam cấp và sảnh hiên ốp đá Granite nguyên khối, chịu lực tốt và chống trầy xước.
Lầu 1 là trung tâm thị giác của mặt tiền với khối ban công đua ra được bo góc điệu đà. Lan can kính cường lực không tay vịn giúp tầm nhìn không bị cản trở. Diện tường mặt tiền khu vực này ốp tấm PVC vân đá cẩm thạch sang trọng, các khung cửa đi và cửa sổ thiết kế dạng vòm cong, phá vỡ sự cứng nhắc của kiến trúc nhà ống. Bồn cây rủ xen kẽ mang lại mảng xanh sinh thái mát mắt.
Lầu 2 thiết kế giật cấp tạo thành một khoảng logia sâu, trần ban công sử dụng hệ lam che nắng, kết hợp đèn downlight âm trần chiếu sáng. Những đường phào chỉ trơn, âm tường được sử dụng tiết chế, chạy dọc theo viền mái bo cong đồng điệu.
Phần mái phía trên sử dụng kết cấu mái bằng bê tông cốt thép vững chắc. Sân thượng bố trí hệ khung thép lấy sáng, kết hợp giếng trời giúp đối lưu không khí và cung cấp ánh sáng tự nhiên cho toàn bộ không gian bên trong.
>>CÁC MẪU NHÀ TƯƠNG TỰ:
- ✅Nhà 1 trệt 2 lầu 5x16m hiện đại tại Đồng Nai | NP3T-NX-3
- ✅Mẫu nhà phố hiện đại 1 trệt 2 lầu 5.5x20m NP3T-NX-2
- ✅Mẫu nhà phố 3 tầng mái bằng 5x20m hiện đại NP3T-NX-1
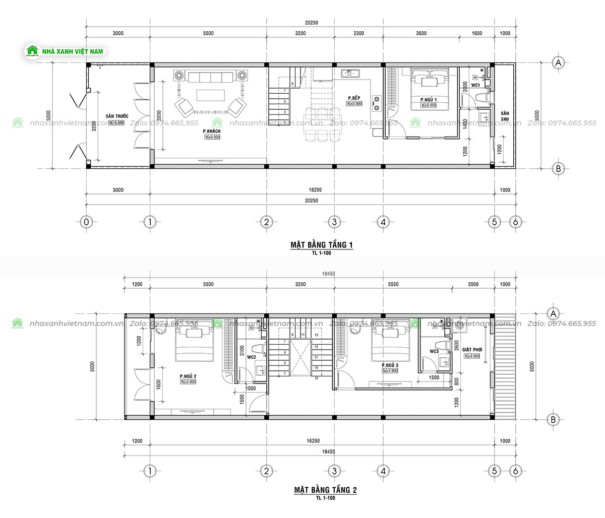
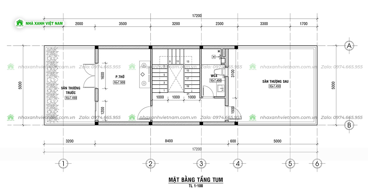
Công năng 3 tầng
Dưới đây là chi tiết bố trí công năng cho từng tầng của công trình:
- Tầng 1: Bắt đầu với khoảng sân trước thoáng đãng, bước vào trong là không gian phòng khách rộng rãi. Cầu thang được bố trí ở giữa nhà, nối tiếp là khu vực phòng bếp kết hợp bàn ăn. Cuối nhà bao gồm 1 phòng ngủ, 1 nhà vệ sinh chung (WC1) và một khoảng sân sau.
- Tầng 2: Khu vực phía trước là phòng ngủ 2 có ban công và nhà vệ sinh khép kín (WC2), ở giữa là sảnh cầu thang và khoảng thông tầng lấy sáng. Phía sau bố trí phòng ngủ 3 cũng tích hợp nhà vệ sinh riêng (WC3), liền kề với khu vực giặt phơi tiện lợi.
- Tầng tum: Phía trước là sân thượng có bố trí bồn hoa. Kế tiếp là không gian phòng thờ, sảnh thang giữa nhà tích hợp thêm 1 nhà vệ sinh (WC4). Phía sau cùng là một khoảng sân thượng lớn.


Hành trình kiến tạo không gian sống hoàn mỹ luôn bắt đầu từ những lựa chọn đúng đắn ban đầu. Hãy liên hệ ngay dịch vụ xây nhà trọn gói tại Đồng Nai của Nhà Xanh Việt Nam để nhận giải pháp thi công tối ưu nhất!





