Được một khách hàng cũ của Nhà Xanh Việt Nam tận tình giới thiệu, anh Thơ đã tìm đến chúng tôi và nhanh chóng cảm thấy sự đồng điệu, tin tưởng nên quyết định chọn giao phó toàn bộ hạng mục thiết kế và xây nhà trọn gói. Dưới đây là chi tiết phối cảnh 3D mặt tiền, bản vẽ bố trí công năng và không gian 3D nội thất của công trình tâm huyết này.
Thông tin về công trình
- Chủ đầu tư: Anh Thơ.
- Địa chỉ: Xã Hải Lăng, tỉnh Quảng Trị.
- Quy mô: Nhà cấp 4 mái nhật.
- Thời gian thi công: 6 tháng.
- Diện tích đất: 12x30m . Diện tích xây dựng: 8x17m.
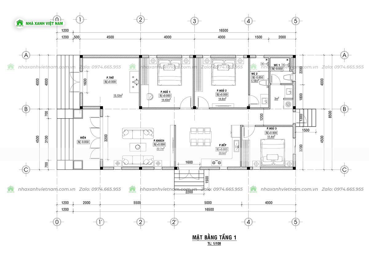
- Công năng: 1 phòng khách, 1 phòng bếp, 3 phòng ngủ, 2 wc , phòng thờ.
- Mã công trình: NCB-202601.
3D mặt tiền và công năng mẫu nhà cấp 4
3D Nhà cấp 4 mái nhật 8x17m tại Quảng Trị
Mặt tiền công trình thể hiện ngôn ngữ kiến trúc hiện đại kết hợp hệ mái Nhật bề thế, với khối nhà trệt trải dài, vuông vức và vững chãi.
Điểm nhấn đầu tiên là hệ mái Nhật lợp ngói tráng men màu xanh dương có độ dốc vừa phải và đua rộng ra xung quanh, mang thiết kế giật cấp đa chiều tạo chiều sâu thị giác, cùng các kim thu sét vươn cao trên đỉnh mái. Hệ sê-nô âm viền mái được đúc bê tông cốt thép, ngay phía dưới là dải sơn màu nâu đất kết hợp các đường kẻ chỉ âm tường, giúp tạo sự phân cách mạch lạc với thân nhà.




Màu sơn ngoại thất trắng sứ chủ đạo làm nổi bật các mảng khối, đặc biệt là khu vực sảnh chính đua rộng ra phía trước với hai cột vuông mang tỷ lệ hình học chuẩn xác. Thân cột được ốp đá marble vân mây màu vàng nâu, kết hợp chân cột và bệ đỡ ốp đá granite đen để tạo đế vững chắc, đồng thời tích hợp đèn hắt sáng ngoại thất gắn nổi nhằm cung cấp ánh sáng điểm nhấn.
Toàn bộ hệ thống cửa sử dụng khung nhôm kính Xingfa màu ghi đen kết hợp kính cường lực khổ lớn nhằm mở rộng tầm nhìn, trong đó cửa chính bốn cánh và các vách kính cố định giúp lấy sáng tối đa cho không gian nội thất, đồng thời bên trái mặt tiền còn bố trí thêm một sảnh phụ với thiết kế đồng bộ để tăng tính kết nối với cảnh quan.
Khối đế công trình được đôn cao thông qua bậc ngũ cấp dẫn lên sảnh chính lát đá hoa cương, nổi bật với mặt bậc màu đỏ ruby kết hợp cổ bậc màu đen tạo độ tương phản. Phần chân tường bao quanh khối nhà được ốp đá chẻ tự nhiên màu xám đen, vừa giúp chống rêu mốc, bảo vệ kết cấu chân móng, vừa mang lại vẻ đẹp thô mộc.
Cảnh quan sân vườn ôm trọn mặt tiền với khoảng sân rộng lát gạch thẻ xám chống trơn trượt, điểm xuyết thêm các bồn hoa nhỏ đặt đối xứng hai bên bậc thềm, làm cho tổng thể mặt tiền toát lên sự mạch lạc, gọn gàng và tối ưu công năng.
>>MẪU NHÀ TƯƠNG TỰ:
- ✅Mẫu Nhà cấp 4 sân vườn đẹp 8x22m 3 phòng Ngủ NCB-202501
- ✅Nhà cấp 4 sân Vườn 1 tầng 8x10m – NCB-202503
- ✅Mẫu nhà cấp 4 mái Nhật đẹp 9.3x17m NCB-202502
Công năng mẫu nhà cấp 4
Từ khoảng hiên trước bước vào là phòng khách rộng rãi được thiết kế liên thông với khu vực bếp ăn tạo nên không gian sinh hoạt chung thoáng đãng. Liền kề sảnh chính là phòng thờ trang nghiêm được bố trí hướng thẳng ra mặt tiền. Tiếp nối theo chiều sâu ngôi nhà là ba phòng ngủ tiện nghi được phân bổ hợp lý. Cuối cùng, khu vực vệ sinh chung kết hợp không gian giặt giũ được đặt kín đáo ở góc trong cùng nhằm đảm bảo tính riêng tư.

Hy vọng mẫu nhà này sẽ mang đến cho bạn những ý tưởng tuyệt vời để kiến tạo nên tổ ấm mang đậm dấu ấn cá nhân. Đừng ngần ngại liên hệ ngay với chúng tôi để được tư vấn chi tiết và trải nghiệm dịch vụ xây nhà trọn gói tại Quảng Trị uy tín, chuyên nghiệp của Nhà Xanh Việt Nam





