Được một khách hàng cũ giới thiệu, vợ chồng anh Hòa và chị Tuyền đã nhanh chóng cảm nhận được sự đồng điệu và quyết định giao phó cho Nhà Xanh Việt Nam thiết kế, thi công trọn gói tổ ấm của mình. Mời bạn cùng chiêm ngưỡng chi tiết phối cảnh 3D mặt tiền, bản vẽ công năng và không gian nội thất của công trình này ngay dưới đây.
Thông tin công trình
- Chủ đầu tư: Anh Hòa chị Tuyền.
- Địa chỉ: KDC Gold Hill, xã Trảng Bom, tỉnh Đồng Nai
- Quy mô: Nhà 1 trệt 2 lầu, sân thượng.
- Thời gian thi công: 5 tháng.
- Diện tích đất: 5mx23m . Diện tích xây dựng: 5x19m.
- Công năng: 1 phòng khách, 1 phòng bếp, 3 phòng ngủ, 2 wc , phòng thờ, phòng sinh hoạt chung, sân thượng.
- Mã công trình: NP3T-NX-5
3D mặt tiền và công năng công trình
3D mặt tiền
Ngôi nhà mang phong cách kiến trúc hiện đại, trong đó mặt tiền là sự giao thoa giữa hình khối bê tông vững chãi và những đường cong vát góc mềm mại. Cấu trúc 1 trệt 2 lầu được xử lý khéo léo để tối ưu cả thẩm mỹ lẫn công năng.




Màu trắng sứ là tông chủ đạo, mảng tường mảng bên trái ốp gạch giả đá xám vân terrazzo nguyên khối. Mảng ốp này chạy dọc xuyên suốt từ tầng trệt lên tận mái. Thiết kế này tạo phương vị dọc mạnh mẽ, làm điểm tựa thị giác cho toàn bộ công trình.
Hệ ban công đua ra ngoài với thiết kế bo tròn tinh tế, thêm vào đó là lan can sử dụng sắt hộp sơn tĩnh điện màu đen. Các thanh sắt đứng thanh mảnh uốn lượn theo đúng viền cong của sàn bê tông. Bồn kẹp hoa đúc liền khối trồng cây thân leo, mảng xanh rủ xuống làm dịu đi sự thô cứng của vật liệu xây dựng.
Trần ban công lầu hai ốp gỗ nhựa Conwood ngoài trời, kết hợp bề mặt vân gỗ màu nâu trầm mang lại sự ấm áp. Hệ đèn led âm trần tán quang được bố trí dọc theo đường viền mái, ánh sáng nhấn mạnh các hình khối kiến trúc khi trời tối. Một ô giếng trời hình tròn khoét thủng ngay khối mái vòm, chi tiết này giúp lấy sáng trực tiếp cho khu vực ban công bên dưới.
Hệ thống cửa đi và cửa sổ sử dụng khung nhôm Xingfa màu xám đen, kính cường lực bao phủ diện tích lớn để lấy sáng tự nhiên. Các cửa mở ra ban công lầu một và lầu hai có thiết kế vòm vát góc ở phía trên, đường cong của cửa đồng điệu tuyệt đối với ngôn ngữ bo tròn của ban công.
Tầng trệt thiết kế lùi sâu, tạo khoảng sân trước rộng rãi làm gara ô tô. Cửa cổng kiên cố với hệ sắt hộp bản lớn, thiết kế gập trượt.
Mặt tiền là một bản phối vật liệu hài hòa. Sơn nước, kính, thép tĩnh điện, gỗ Conwood và gạch ốp lát kết hợp chặt chẽ. Mọi chi tiết gờ chỉ đều được lược bỏ, thay vào đó là sự lên tiếng của hình khối và vật liệu hoàn thiện.
>> CÁC MẪU NHÀ TƯƠNG TỰ:
- ✅Nhà 1 trệt 2 lầu 5x19m mái bằng Hiện Đại – NP3T-NX-4
- ✅Nhà 1 trệt 2 lầu 5x16m hiện đại tại Đồng Nai | NP3T-NX-3
- ✅Mẫu nhà phố hiện đại 1 trệt 2 lầu 5.5x20m NP3T-NX-2
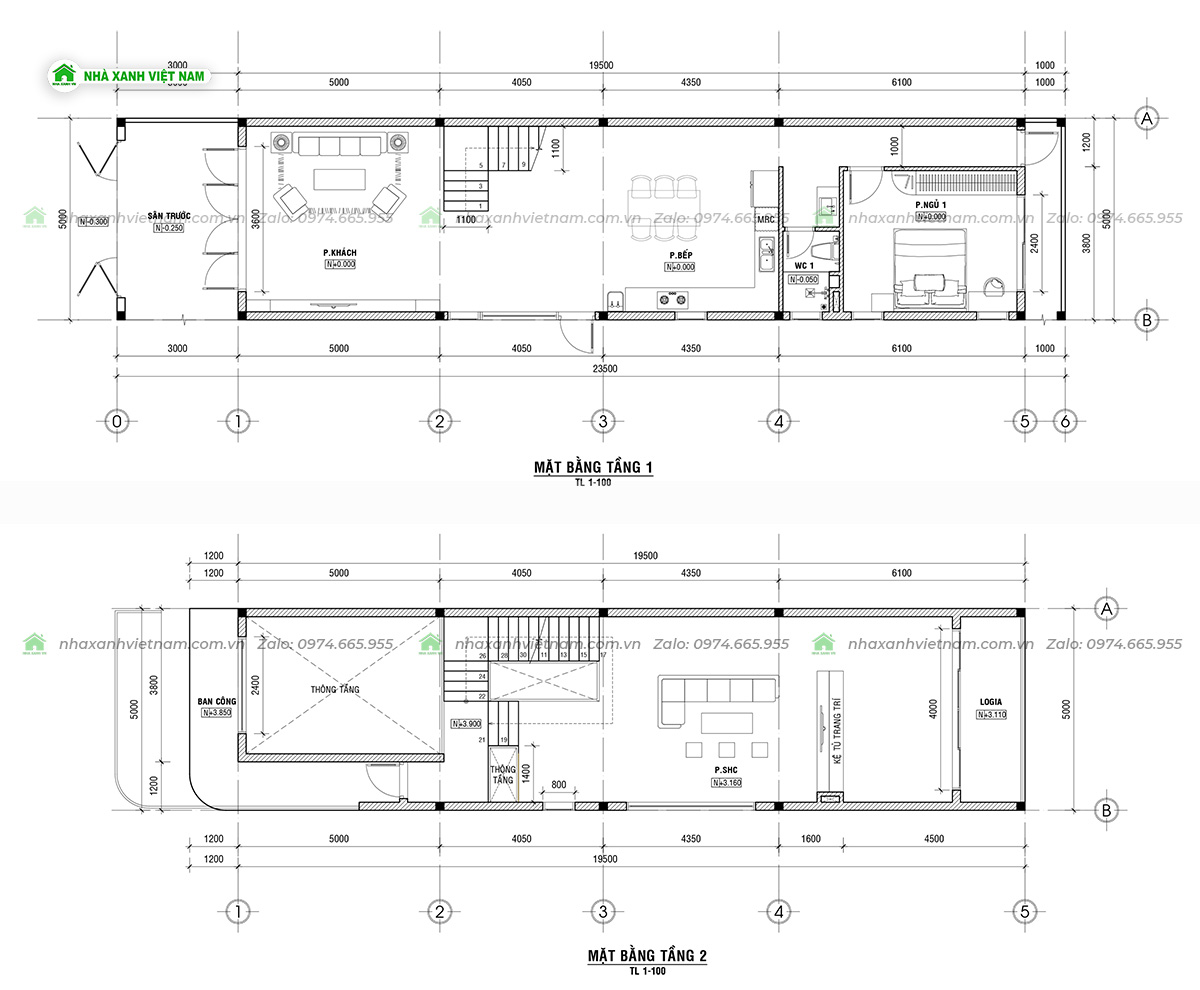
Công năng 3 tầng của công trình
Công năng của công trình Nhà 1 trệt 2 lầu 5x19m hiện đại được bố trí như sau:
- Tầng 1: Sân trước, phòng khách, phòng bếp ăn, 1 phòng vệ sinh (WC 1), phòng ngủ 1.
- Tầng 2: Ban công, khoảng thông tầng, phòng sinh hoạt chung, logia.
- Tầng 3: Ban công, phòng thờ, khu vực học tập/làm việc, phòng ngủ 3, 1 phòng vệ sinh (WC 1), phòng ngủ 2.


Một không gian sống hoàn hảo luôn bắt đầu từ những bản vẽ chỉn chu và một nhà thầu tận tâm. Nếu bạn đang ấp ủ ý tưởng về tổ ấm tương lai, hãy liên hệ ngay với Nhà Xanh Việt Nam để trải nghiệm dịch vụ xây nhà trọn gói tại Đồng Nai uy tín và chất lượng





