Qua lời giới thiệu đầy thiện chí từ một khách hàng cũ của Nhà Xanh Việt Nam, Anh Dương Chị Huyên cảm thấy vô cùng tin tưởng và nhanh chóng lựa chọn chúng tôi làm đối tác đồng hành thiết kế và xây nhà trọn gói cho tổ ấm của mình. Ngay sau đây, Nhà Xanh Việt Nam xin được trân trọng giới thiệu đến quý vị trọn bộ phối cảnh 3D ngoại thất, nội thất và mặt bằng công năng chi tiết của mẫu nhà 4 tầng 9mx40m mang phong cách tân cổ điển vương giả do đội ngũ kiến trúc sư của chúng tôi dày công kiến tạo.
Thông tin công trình
- Chủ đầu tư: Anh Dương Chị Huyên
- Địa chỉ: Đường Bùi Văn Hòa, phường Long Bình, tỉnh Đồng Nai
- Quy mô: Nhà 1 tầng hầm, 1 trệt 3 lầu, thang máy.
- Thời gian thi công: 10 tháng.
- Diện tích đất: 9mx40m. Diện tích xây dựng: 9x16m.
- Công năng: 1 phòng khách, 1 phòng kinh doanh, 1 phòng giải trí, thang máy, 1 phòng bếp, 5 phòng ngủ, 5 wc , phòng thờ, phòng sinh hoạt chung, sân thượng.
- Mã công trình: NP4T-NX-8
3D mặt tiền, nội thất và công năng mẫu nhà phố 4 tầng
3D mặt tiền
Mẫu nhà 4 tầng 9mx16m tân cổ điển gây ấn tượng mạnh mẽ với ngôn ngữ kiến trúc tân cổ điển Pháp, toát lên vẻ đẹp bề thế và vương giả. Phối cảnh mặt tiền sử dụng tone màu trắng sứ chủ đạo, làm phông nền hoàn hảo để tôn lên các chi tiết trang trí ngoại thất và hệ mái.




Mặt tiền tầng 1 sử dụng hệ cửa cuốn an toàn bản rộng, hai bên vách cột được ốp đá tự nhiên tông màu nâu ấm, tạo thành khối bệ đỡ vững chãi cho toàn bộ công trình. Lên đến tầng 2, kiến trúc sư bố trí dải ban công chạy dài với hệ lan can con tiện xi măng truyền thống. Hệ thống cửa đi và cửa sổ sử dụng kính cường lực khung nhôm Xingfa đen, giúp tối ưu hóa nguồn ánh sáng tự nhiên.
Trọng tâm thị giác của mặt tiền tập trung ở không gian tầng 3 với thiết kế cửa vòm bán nguyệt uy nghi. Hệ cửa này được ôm trọn bởi thức cột tròn mang âm hưởng Corinthian, với phần đầu cột và con bọ đắp nổi hoa văn lá Acanthus tinh xảo. Phía dưới bệ cửa sổ vòm là chi tiết phù điêu đắp nổi hình vỏ sò cách điệu nghệ thuật. Lan can ban công tại đây sử dụng vật liệu sắt mỹ thuật uốn hoa văn cổ điển, mạ màu vàng đồng quyền quý. Toàn bộ diện tường mặt tiền được xử lý bằng các đường kẻ chỉ âm sắc nét, kết hợp với hệ phào chỉ xi măng bao quanh khung cửa theo tỷ lệ vàng chuẩn mực.
Kết thúc phương vị đứng là hệ mái Mansard hình chóp cụt đặc trưng, được dán ngói vảy cá màu xanh dương nổi bật. Các ô cửa sổ mái được bố trí khéo léo để lấy sáng và thông gió cho tầng tum, đồng thời được trang trí viền phào và khóa vòm ầu kỳ. Phần sân thượng được tận dụng làm không gian cảnh quan với cây xanh, bao bọc bởi lan can sắt mỹ thuật đồng bộ, tạo nên một tổng thể kiến trúc hài hòa, sang trọng và đẳng cấp.
Công năng các tầng mẫu nhà phố
Công năng 4 tầng của mẫu nhà được bố trí chi tiết như sau:
- Tầng 1 (Tầng trệt): Không gian kinh doanh, Gara để xe rộng rãi, Phòng bếp kết hợp phòng ăn, 1 WC chung.
- Tầng 2 (Lầu 1): Ban công, Phòng khách lớn, 1 Phòng ngủ Master (tích hợp phòng thay đồ và WC khép kín).
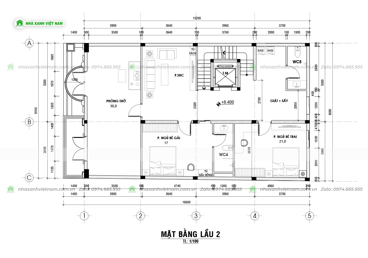
- Tầng 3 (Lầu 2): Ban công, Phòng thờ, Phòng sinh hoạt chung, 1 Phòng ngủ bé gái, 1 Phòng ngủ bé trai (có WC khép kín), 1 WC chung, Khu vực giặt sấy.
- Tầng 4 (Tầng áp mái): Sân thượng phía trước rộng rãi, 1 Phòng ngủ, 1 WC chung.




>>CÁC MẪU NHÀ TƯƠNG TỰ:
- ✅Mẫu nhà phố 4 tầng hiện đại 5x20m 4 phòng ngủ NP4T-NX-7
- ✅Mẫu nhà phố 4 tầng 7 phòng ngủ 5x20m hiện đại NP4T-NX-6
- ✅Mẫu nhà phố 4 tầng mái bằng 5x20m 5 phòng ngủ – NP4T-NX-5
3D nội thất
Nội thất phòng khách sử dụng tông màu trắng sứ chủ đạo làm nổi bật sảnh đón lớn. Hệ thống vòm cong uyển chuyển kết nối các khu vực. Đèn chùm pha lê treo trung tâm sảnh chính. Ánh sáng vàng dịu tôn vinh chi tiết chạm trổ tinh xảo trên tường.



Khu vực bếp và ăn uống tiện nghi, hiện đại. Tủ bếp gỗ tự nhiên sơn màu sáng chạy dọc bức tường. Bàn ăn lớn đặt giữa không gian ấm cúng, mặt bàn ốp đá cẩm thạch trắng cao cấp. Cửa sổ lớn phân bố ánh sáng tự nhiên vào khu vực bếp.



Phòng ngủ chính mang phong cách vương giả rõ rệt. Giường ngủ lớn có vách đầu giường bọc da tông màu nhẹ nhàng tạo cảm giác yên bình.Hệ cửa kính lớn mở ra ban công riêng rộng rãi.





Các phòng ngủ phụ thiết kế linh hoạt, nội thất đơn giản nhưng sang trọng. Ánh sáng tự nhiên tràn ngập qua cửa sổ lớn. Vách tường được trang trí bằng phào chỉ tân cổ điển kết hợp đèn trang trí gắn tường tạo điểm nhấn.



Hệ thống cầu thang uốn lượn kết nối các tầng, các lan can sắt mỹ thuật với họa tiết tinh xảo cùng cột trụ vuông được trang trí chuẩn tỷ lệ kiến trúc.




Sân thượng rộng rãi là nơi thư giãn lý tưởng điểm nhấn là cảnh quan sân vườn nhỏ tạo không gian xanh cùng lan can nghệ thuật bao quanh khu vực này. Tầm nhìn mở từ đây đón gió và ánh sáng tự nhiên, phần mái Mansard độc đáo tạo ra không gian sử dụng linh hoạt.



Nếu quý vị cũng đang ấp ủ ước mơ về một không gian sống đẳng cấp, tiện nghi như mẫu nhà của chị Ánh Anh Anh, đừng ngần ngại hãy liên hệ ngay với Nhà Xanh Việt Nam. Hãy để chúng tôi mang đến giải pháp xây nhà trọn gói tại Đồng Nai chuyên nghiệp, giúp quý vị hiện thực hóa ngôi nhà lý tưởng với cam kết chất lượng và dịch vụ tận tâm nhất.





