Qua lời giới thiệu của một người bạn thân từng là khách hàng cũ, chú Phúc đã tìm đến Nhà Xanh Việt Nam với mong muốn về một tổ ấm đẳng cấp. Cảm nhận được sự chuyên nghiệp và đồng điệu trong ý tưởng, chú đã hoàn toàn tin tưởng và quyết định trao trọn gói cả khâu thiết kế lẫn thi công cho chúng tôi để kiến tạo nên công trình ấn tượng này.
Thông tin về mẫu nhà 2 tầng mái Nhật hiện đại 12.5mx15.5m – MN2T-ĐN03
Thông tin về công trình nhà cấp 4 sân vườn như sau:
- Mã công trình: MN2T-ĐN03.
- Chủ đầu tư: Chú Phúc.
- Địa chỉ: phường Phước Tân, tỉnh Đồng Nai.
- Quy mô: Nhà 2 tầng mái Nhật hiện đại.
- Thời gian thi công: 6 tháng.
- Diện tích nhà: 12.5mx15.5m . Diện tích đất: 1400m2.
- Công năng: 1 phòng khách, 1 phòng bếp, 6 phòng ngủ, 5 wc , phòng thờ, phòng sinh hoạt chung, sân thượng.
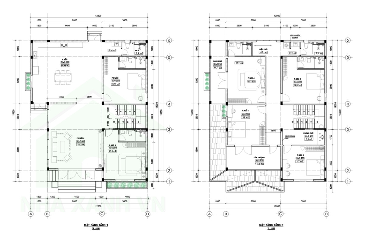
Công năng và 3D mẫu nhà 2 tầng mái Nhật hiện đại
Công năng 2 tầng mẫu nhà mái Nhật sân vườn
Mẫu nhà mái Nhật 2 tầng sân vườn được bố trí công năng như sau:
- Tầng 1: Phòng khách nối với bếp có bàn ăn, 2 phòng ngủ có WC riêng, phòng giặt và 1 WC chung.
- Tầng 2: Phòng thờ, 4 phòng ngủ, phòng giặt phơi, 1 WC chung, sân thượng.

Mặt tiền 3D mẫu nhà 2 tầng mái Nhật hiện đại tại Đồng Nai
Mặt tiền mẫu nhà 2 tầng mái Nhật hiện đại 12.5mx15.5m là sự sắp xếp tài tình các mảng khối kiến trúc hình học vuông vức, phi đối xứng. Các khối nhà được xếp chồng và đan xen, tạo ra chiều sâu và nhịp điệu thị giác ấn tượng. Kiến trúc sư đã khéo léo sử dụng phào chỉ âm chạy ngang trên tường, vừa giảm bớt sự đơn điệu cho các diện tường lớn, vừa tạo điểm nhấn kiến trúc tinh tế.



Màu sắc chủ đạo là gam màu trắng thanh lịch, kết hợp với màu xám ghi của các mảng tường ốp đá thẻ và màu đen của hệ khung cửa, tạo nên sự tương phản mạnh mẽ mà hài hòa. Điểm nhấn đặc biệt là hệ mái Nhật lợp ngói xanh đen cao cấp, được thiết kế theo kiểu mái giật cấp phức hợp, vừa có tác dụng che chắn, thoát nước tốt, vừa mang lại giá trị thẩm mỹ cao, tạo cảm giác bề thế cho ngôi nhà.
Toàn bộ hệ cửa đi và cửa sổ là cửa kính cường lực khung nhôm Xingfa bản lớn, giúp tối ưu hóa việc lấy sáng tự nhiên và mở rộng tầm nhìn ra khu vực sân vườn. Các khu vực ban công sử dụng lan can kính cường lực, duy trì sự thông thoáng và nét đẹp thời thượng. Một số vị trí như dưới mái hiên và lam trang trí được ốp vật liệu gỗ Conwood mang lại cảm giác ấm cúng nhưng vẫn đảm bảo độ bền trước thời tiết.
Phần chân tường và các cột trụ vuông vức ở sảnh chính được ốp đá tự nhiên tối màu, không chỉ tăng vẻ vững chãi mà còn bảo vệ công trình khỏi các yếu tố môi trường. Tổng thể mặt tiền là sự hòa quyện giữa đường nét, màu sắc và vật liệu, tạo nên một công trình sang trọng, đẳng cấp và kết nối hài hòa với không gian sân vườn tiểu cảnh xung quanh.



>>MẪU NHÀ TƯƠNG TỰ:
- ✅Mẫu nhà cấp 4 mái Nhật đẹp 9.3x17m NCB-202502
- ✅Mẫu nhà mái Nhật đẹp 9.3x17m NP2T-NX-9
- ✅Nhà 2 tầng mái Nhật lô góc 240 m2 3 phòng ngủ MN2T-QT02
Nội thất 3D mẫu nhà
3D phòng khách
Thiết kế mang đậm hơi thở Indochine Luxury với bộ sofa gỗ kết hợp chi tiết mây đan mắt cáo và đệm nỉ nhung xanh rêu sang trọng. Điểm nhấn trung tâm là vách TV ốp đá Marble đen vân mây đối xứng, tích hợp lò sưởi điện và hệ tủ trưng bày cánh kính nẹp đồng, tạo chiều sâu không gian. Trần ốp gương tráng thủy kết hợp phào chỉ giật cấp giúp khuếch đại ánh sáng và mở rộng tầm nhìn thị giác hiệu quả.





3D căn bếp
Khu vực bếp nổi bật với hệ tủ kịch trần phối màu tương phản (trắng – nâu trầm), tạo điểm hút mắt bằng mảng tường gạch Mosaic vảy cá (Fish Scale) màu xanh ngọc bích. Bàn đảo kết hợp bàn ăn lớn được bố trí trung tâm trên nền gạch bông họa tiết cổ điển, đảm bảo quy tắc “tam giác hoạt động” tối ưu trong thiết kế nội thất, vừa tiện nghi vừa thẩm mỹ.


Công trình của gia đình chú Phúc là minh chứng rõ nét cho năng lực và sự tận tâm của đội ngũ chúng tôi. Nếu quý khách đang tìm kiếm một đơn vị thiết kế và xây nhà trọn gói tại Đồng Nai, đừng ngần ngại liên hệ ngay với Nhà Xanh Việt Nam nhé!





